Piano Complesso di Intervento 3 - La Villa
Versione del 14 apr 2014 alle 06:24 di Niccolo Rigacci (discussione | contributi)
Si tratta di una lottizzazione di circa 90.000 metri quadri nella zona nord-ovest di Campi Bisenzio, ad ovest di via del Tabernacolo, località Capalle. Circa dove è indicato il punto sulla mappa.
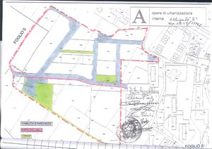
La convenzione parla di 55.000 metri cubi di cemento tra palazzi e negozi, qui di seguito alcune planimetrie estratte dalla convenzione.
Documenti
- Deliberazione del Consiglio Comunale n. 64 del 11/04/2013 Piano complesso d'intervento “ PC3 - La Villa” - Via del Tabernacolo. Approvazione con controdeduzioni. Allegato: Relazione del responsabile.
- Determinazione n. 34 del 23/05/2013 Stipulazione atto di convenzione con “Il Tabernacolo Costruzioni Generali srl” e altri per Piano Complesso di Intervento PC 3 – La Villa.
- Convenzione per l'esecuzione delle opere P.C.I.3 La Villa tra Comune di Campi Bisenzio, Il Tabernacolo Costruzioni Generali s.r.l., Casini Futura s.r.l., Paolo e Roberto Lottini s.r.l., Fratelli Lottini s.n.c.
Rassegna stampa
- Campi Bisenzio: il Prc non vota il piano per La Villa ma propone alternative - Piananotizie, 30 dicembre 2012
- Variante al piano di classificazione acustica in Consiglio - Piananotizie, 9 aprile 2013
- Colzi: “Ecco chi ha detto no al piano complesso di Capalle” - Piananotizie, 12 aprile 2013